PROPERTY FOR SALE OR RENT

SEARCH
SOLD STC

13/6 Trinity Street Hawick TD9 9NR.

Rooms

1 Public Rooms
3 Bedrooms
1 Bathrooms

Highlights

Double Glazing

Full Description

Built around 130 years ago, this purpose built second and attic floor maisonette forms part of a four storey block containing six residential properties.

The property is situated in a quiet residential area, not far from the town centre and within a short walk to Trinity Primary school.

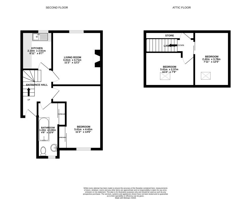
The accommodation comprises; Entrance Hallway, living Room, bathroom, kitchen and bedroom on the ground floor, with 2 further bedrooms on the upper floor. In total around 64 SQM of living space.

There is gas in the building but it has been disconnected, as has the electric.

The property requires a fair degree of cosmetic updating, which has been reflected in the asking price.

Outside there is ample on-street parking to the front and a shared drying green to the rear.

A real renovation property with great potential.

MORE INTERNAL IMAGES TO FOLLOW.

More Information

Parking Nearby
Living Level Toilet
Council Tax Band: A Verify
EPC Rating: G

What We Like...

Size, Development Potential

Room Specification

Room Size (m) Size (feet)  
ENTRANCE HALLWAY 
LIVINGROOM
3.41m x 3.71m
11'2'' x 12'2''
BATHROOM
1.43m x 3.80m
4'8'' x 12'5''
KITCHEN
2.10m x 2.61m
6'10'' x 8'6''
BEDROOM  1
3.41m x 4.42m
11'2'' x 14'6''
BEDROOM 2
3.41m x 2.37m
11'2'' x 7'9''
BEDROOM 3
2.42m x 3.78m
7'11'' x 12'4''

Viewing through Jim Hay, 100% accompanied.

Best Local Estate Agency - Scottish Borders, Real Estate and Property Awards 2015

Important Notice:

Jim Hay Estate Agents Ltd, their clients and any joint agents give notice that:

1. They are not authorised to make or give any representations or warranties in relation to the property either in writing or by word of mouth. Any information given is entirely without responsibility on the part of the agents or the sellers. These particulars do not form part of any offer or contract and must not be relied upon as statements or representations of fact.

2. Any areas, measurements or distances are approximate. The text, photographs and plans are for guidance only and are not necessarily comprehensive and it should not be assumed that the property remains as photographed. Any error, omission or mis-statement shall not annul the sale, or entitle any party to compensation or recourse to action at law. It should not be assumed that the property has all necessary planning, building regulation or other consents, including for its current use. Jim Hay Estate Agents Ltd. have not tested any services, equipment or facilities. Purchasers must satisfy themselves by inspection or otherwise and ought to seek their own professional advice.

3. All descriptions or references to condition are given in good faith only. Whilst every endeavour is made to ensure accuracy, please check with us on any points of especial importance to you, especially if intending to travel some distance. No responsibility can be accepted for expenses incurred in inspecting properties, which have been sold or withdrawn.

WHY NOT CHECK THESE OTHER PROPERTIES
NEW
Image of Rigfoot Main Street
Lillesleaf Lilliesleaf
Rigfoot Main Street Lillesleaf TD6 9JB.

Most delightful 3 bedroom cottage, full of character and charm, situated in the lovely Borders village of Lilliesleaf

 

Guide Price - £275,000

3 1 1
NEW
Image of Braeside 21 Douglas Road East
Hawick Hawick
Braeside 21 Douglas Road East Hawick TD9 9NU.

Very well presented, 3 bed family property , situated in an elevated position , with lovely views over the town and beyond.

 

Guide Price - £270,000

3 2 2
NEW
Image of Industrial Units & Yard 7C Spylaw Road
Kelso Kelso
Industrial Units & Yard 7C Spylaw Road Kelso TD5 8DL.

Large Industrial Units & Yard, located in Industrial park on the outskirts of Kelso

 

In Region Of - £250000 SHEDS TO BE DEMOLISHED LEAVING CLEAR SITE

0 0 0