PROPERTY FOR SALE OR RENT

SEARCH
RECENTLY SOLD

21A Minto Place Hawick TD9 9JL.

Rooms

1 Public Rooms
1 Bedrooms
1 Bathrooms

Highlights

Double Glazing
Garden

Full Description

Built around 130 years ago, this attractive basement floor flat, forms part of a four storey block containing 6 residential units.

The property is accessed via external stairs that open out onto a small courtyard. The accommodation comprises; Entrance Hallway, Living Room, Kitchen, Bedroom (with large walk-in wardrobe)and bathroom. In total around 46SQM of living space.

Benefitting from electric storage heating and UPVC double glazing. Presented in excellent order throughout, having been recently decorated and new floor coverings.

Would make an ideal first time purchase, buy-to-let property or Air B&B.

There is a shared drying green to the rear.

Must be viewed to fully appreciate.

More Information

Parking Nearby
Living Level Toilet
Wide Doors
Same Level Rooms
Council Tax Band: A Verify
EPC Rating: E

What We Like...

Location, Investment Potential, Bright & Spacious

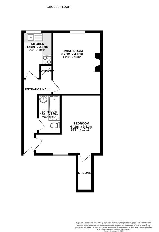
Room Specification

Room Size (m) Size (feet)  
ENTRANCE HALLWAY
LIVINGROOM
3.25m x 4.12m
10'7'' x 13'6''
KITCHEN 
1.94m x 3.07m
6'4'' x 10'0''
BEDROOM
4.41m x 3.91m
14'5'' x 12'9''
BATHROOM 
1.50m x 2.55m
4'11'' x 8'4''

Viewing through Jim Hay, 100% accompanied.

Best Local Estate Agency - Scottish Borders, Real Estate and Property Awards 2015

Important Notice:

Jim Hay Estate Agents Ltd, their clients and any joint agents give notice that:

1. They are not authorised to make or give any representations or warranties in relation to the property either in writing or by word of mouth. Any information given is entirely without responsibility on the part of the agents or the sellers. These particulars do not form part of any offer or contract and must not be relied upon as statements or representations of fact.

2. Any areas, measurements or distances are approximate. The text, photographs and plans are for guidance only and are not necessarily comprehensive and it should not be assumed that the property remains as photographed. Any error, omission or mis-statement shall not annul the sale, or entitle any party to compensation or recourse to action at law. It should not be assumed that the property has all necessary planning, building regulation or other consents, including for its current use. Jim Hay Estate Agents Ltd. have not tested any services, equipment or facilities. Purchasers must satisfy themselves by inspection or otherwise and ought to seek their own professional advice.

3. All descriptions or references to condition are given in good faith only. Whilst every endeavour is made to ensure accuracy, please check with us on any points of especial importance to you, especially if intending to travel some distance. No responsibility can be accepted for expenses incurred in inspecting properties, which have been sold or withdrawn.

WHY NOT CHECK THESE OTHER PROPERTIES
NEW
Image of Leydens Cottage Leydens Road
Denholm Denholm
Leydens Cottage Leydens Road Denholm TD9 8NB.

Stunning thatched 3 bed cottage, lovely village location, with large flat garden

 

Offers Over - £390,000

3 2 1
NEW
Image of Braeside 21 Douglas Road East
Hawick Hawick
Braeside 21 Douglas Road East Hawick TD9 9NU.

Very well presented, 3 bed family property , situated in an elevated position , with lovely views over the town and beyond.

 

Guide Price - £270,000

3 2 2
NEW
Image of Industrial Units & Yard 7C Spylaw Road
Kelso Kelso
Industrial Units & Yard 7C Spylaw Road Kelso TD5 8DL.

Large Industrial Units & Yard, located in Industrial park on the outskirts of Kelso

 

In Region Of - £250000 SHEDS TO BE DEMOLISHED LEAVING CLEAR SITE

0 0 0